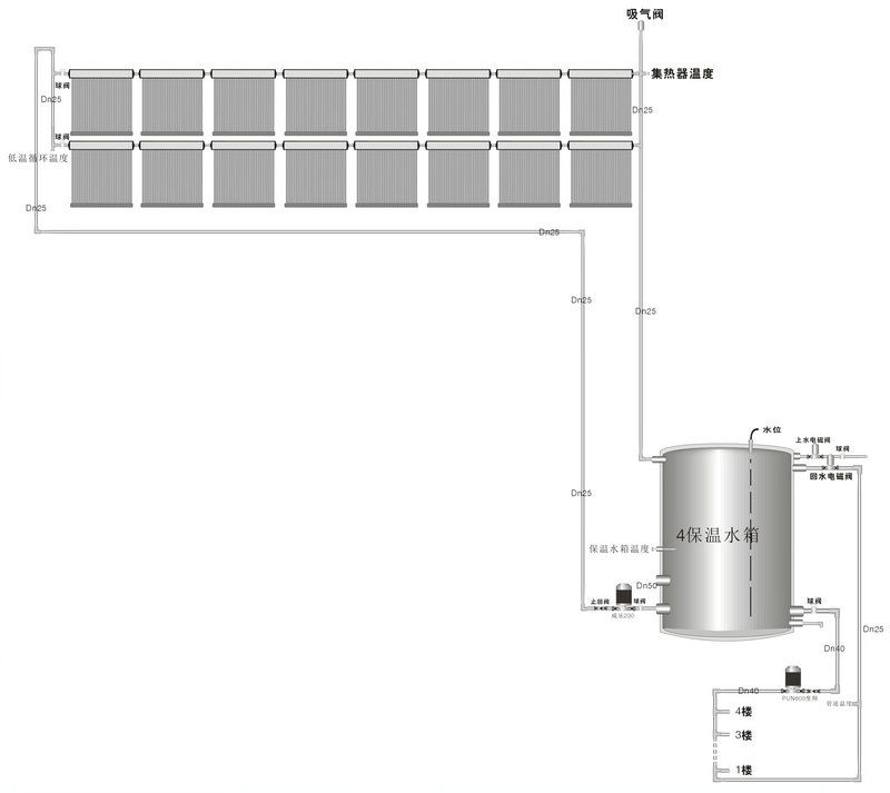
4吨太阳能热水工程
4吨太阳能热水工程真空管集热器示意图:一

4吨太阳能热水工程真空管集热器示意图:二

4吨太阳能热水工程真空管集热器示意图:三

4吨太阳能热水工程真空管集热器工程图片

3吨太阳能热水工程(示意图、工程图)
« 上一篇
2025年12月6日 上午9:38
4吨太阳能热水工程真空管集热器示意图:一

4吨太阳能热水工程真空管集热器示意图:二

4吨太阳能热水工程真空管集热器示意图:三

4吨太阳能热水工程真空管集热器工程图片
